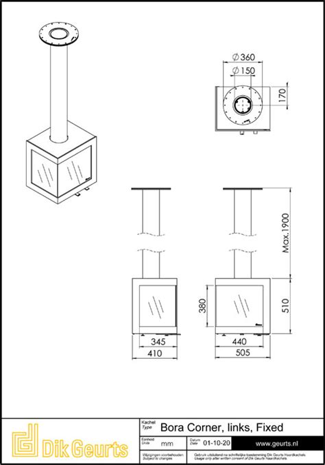
Robust cube with double-sided fireview
The two-sided glass window of the Bora Corner design fires gives a beautiful fire view. Hanging in the room or standing on a plateau, the Bora provides warmth and atmosphere throughout the area.
• Choose a left or right version
• Design fireplace for any position in the house
• Wide output range, optimally adjustable





















